REQUEST A TOUR If you would like to see this home without being there in person, select the "Virtual Tour" option and your agent will contact you to discuss available opportunities.
In-PersonVirtual Tour

$ 18
Active
151 Crosbie RD #101 St. John's, NL A1B4B4
5,325 SqFt
UPDATED:
Key Details
Property Type Commercial
Sub Type Freehold
Listing Status Active
Purchase Type For Rent
Square Footage 5,325 sqft
MLS® Listing ID 1287827
Property Sub-Type Freehold
Source Newfoundland & Labrador Association of REALTORS®
Property Description
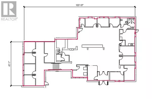
151 Crosbie Rd is a centrally located, high exposure building with tons of recent upgrades (all new HVAC units, all new windows and doors, new exterior facade, and new roof)! On the corner of Freshwater & Crosbie Rd, this building offers quick and convenient access to commercial districts and transportation links including downtown, Kenmount Rd, Columbus Dr, Kelsey Dr, and the Outer Ring Rd/Trans Canada Highway. This high exposure retail/storefront unit will be available for lease as of Oct 1, 2025. Zoned Commercial Highway, the property allows for a number of commercial uses! Suite 101 has a current layout that includes exterior offices, large windows, in-suite washroom facilities, and kitchen. Listed at $18/sqft Net + Operating Costs! Contact listing agent for additional details. (id:24570)
Location
Province NL
Rooms
Kitchen 0.0
Interior
Heating Heat Pump,
Cooling Air exchanger
Exterior
Parking Features No
View Y/N No
Private Pool No
Others
Ownership Freehold
Acceptable Financing Monthly
Listing Terms Monthly






